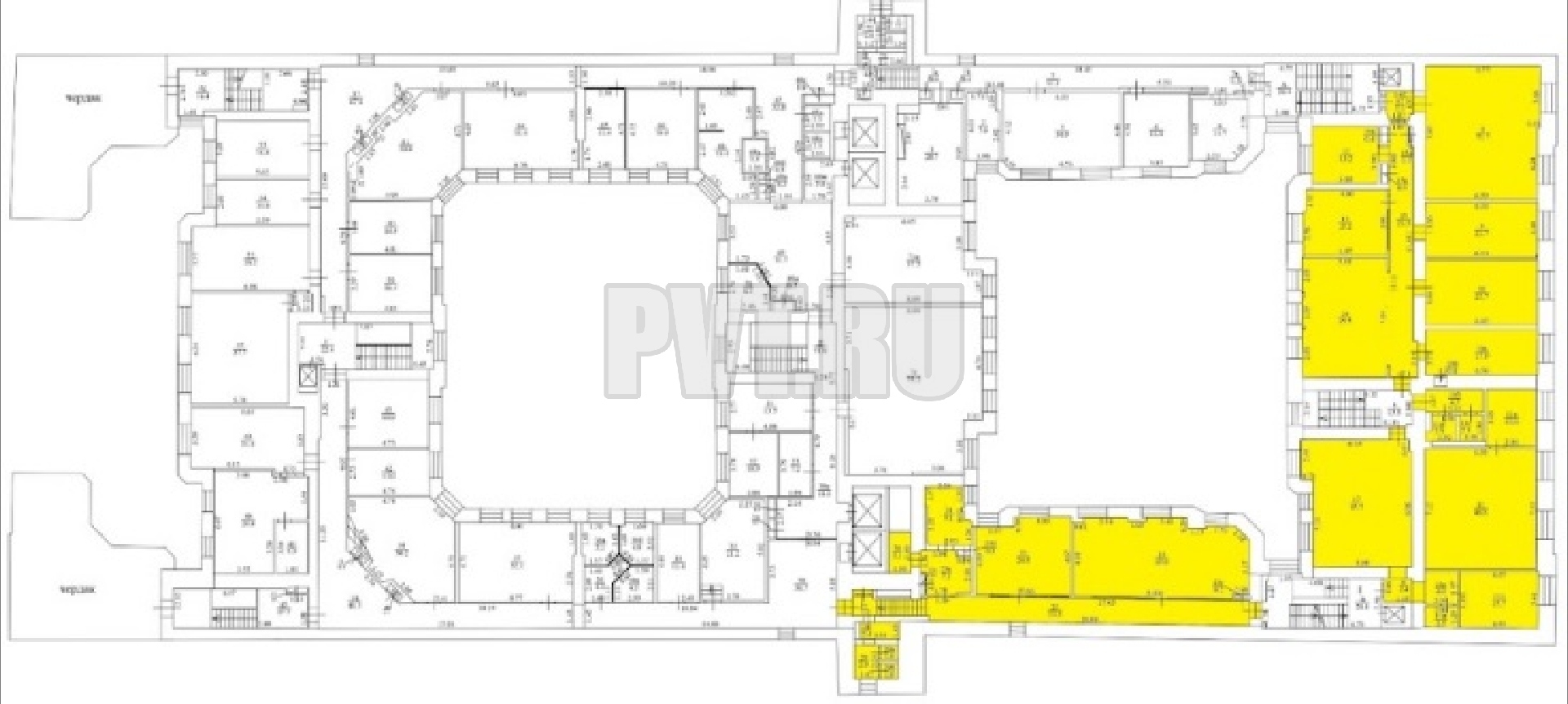
Офис, 550 м², кабинетная планировка, готово к въезду

Характеристики помещения

Площадь

550 м²

Есть мебель

Да

Есть кондиционирование

Да

Есть Серверная

Да

3 020 557,38 ₽/мес.

12 082,23 ₽/м²/год

Связаться с нами

Коммерческие условия

Налогообложение

НДС

B+

Класс

1914

Год постройки

2000

Год реконструкции

6

Количество этажей

Вы можете записаться на просмотр интересующей вас площади